PTA9096

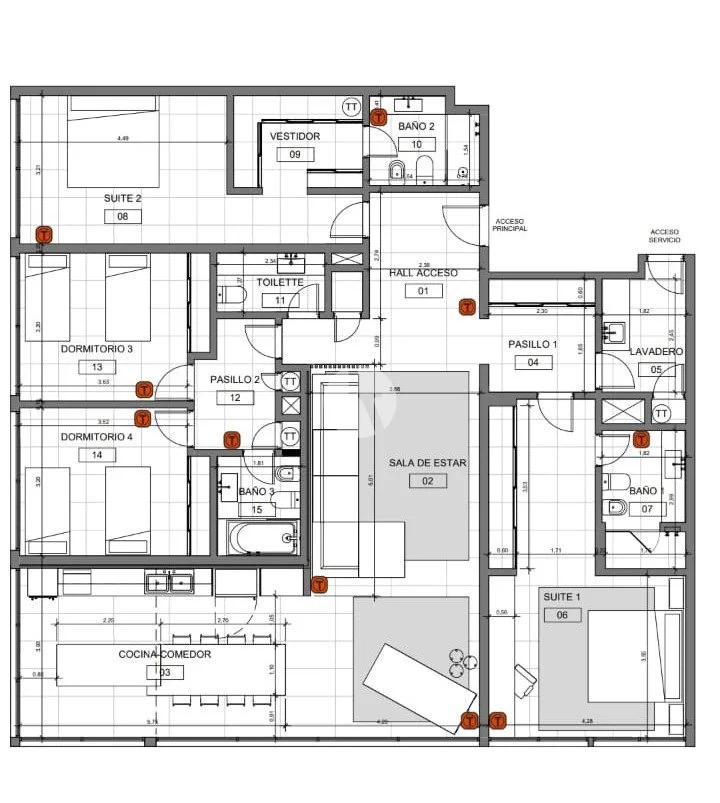
Departamento totalmente reciclado hace 2 años en primera fila frente a Playa Brava (parada 6) en emblemático edificio Tiburón 2. Living comedor, cocina abierta, tres dormitorios, dos baños, dependencia de servicio con baño, calefacción por losa radiante eléctrica con termostatos sectorizados por ambiente, cortinas de enrollar eléctricas con control remoto, dos cocheras y dos bauleras. Se vende amoblado. Servicio de mucama, portería las 24 horas, servicio de playa, gimnasio, sala de lectura, garajista.


Imágenes

 

Plano

 

Video


Detalles

Superficie Cubierta: 174 m2

Dormitorios: 3

Código: PTA9096

Precio: 690.000 usd



Ubicación

 
 
 
 
Contáctenos por WhatsApp
Anterior
Anterior

PTA9111

Siguiente
Siguiente

PTA9097